Niezależne forum mieszkańców Kwidzyna i nie tylko :-)

Strefa czasowa: UTC + 1




Utwórz nowy wątek Ten wątek jest zablokowany. Nie możesz w nim pisać ani edytować postów.  [ Posty: 2612 ]  Przejdź na stronę Poprzednia strona  1 ... 54, 55, 56, 57, 58, 59, 60 ... 175  Następna strona
Autor Wiadomość
 Tytuł: Re: Budowa mostu koło Kwidzyna w ciągu DK90
PostNapisane: 26 października 2011, o 18:26 
Offline
Przyjaciel forum
Avatar użytkownika

Dołączył(a): 27 października 2006, o 12:24
Posty: 4883
Lokalizacja: Kwidzyn
Płeć: Mężczyzna
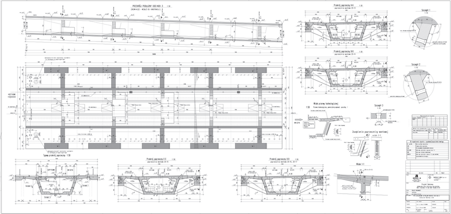
Pełen arkusz wygląda tak:
i jego wycinek:


Załączniki:
arkusz.png
arkusz.png [ 295.22 KiB | Przeglądane 105900 razy ]
arkusz1.png
arkusz1.png [ 270.62 KiB | Przeglądane 105900 razy ]

_________________
"Czym się różni człowiek cywilizowany od kulturalnego? Człowiek cywilizowany jeśli kopnie, to przeprosi, a człowiek kulturalny nie przeprosi, bo nie kopnie"
Góra
 Zobacz profil Wyślij e-mail  
 
 Tytuł: Re: Budowa mostu koło Kwidzyna w ciągu DK90
PostNapisane: 26 października 2011, o 19:07 
Offline
Avatar użytkownika

Dołączył(a): 22 października 2010, o 15:27
Posty: 251
Lokalizacja: Obserwator
Płeć: Mężczyzna
Oki44.Dzięki za błyskawiczną reakcję.


Załączniki:
arkusz1.png
arkusz1.png [ 92.91 KiB | Przeglądane 105884 razy ]
Góra
 Zobacz profil  
 
 Tytuł: Re: Budowa mostu koło Kwidzyna w ciągu DK90
PostNapisane: 26 października 2011, o 20:08 
Offline
Przyjaciel forum
Avatar użytkownika

Dołączył(a): 2 stycznia 2007, o 11:28
Posty: 274
Lokalizacja: Rakowiec
Płeć: Mężczyzna
Czy nie da się zamieścić na forum arkusza jako .pdf ?

_________________
Każdy problem ma swoje rozwiązanie,
jeżeli nie ma rozwiązania, to nie ma problemu (znalezione w sieci).


Góra
 Zobacz profil Wyślij e-mail  
 
 Tytuł: Re: Budowa mostu koło Kwidzyna w ciągu DK90
PostNapisane: 26 października 2011, o 22:07 
Offline
Avatar użytkownika

Dołączył(a): 22 października 2010, o 15:27
Posty: 251
Lokalizacja: Obserwator
Płeć: Mężczyzna
marmeg,niech oki44 coś wymyśli,a ja wklejam następny rysunek,może będziesz zadowolony,bo zauważyłem,że interesujesz się(może i inni) "kuchnią" projektowania.Zaznaczam,że to co namodziłem,to są tylko podstawy mechaniki technicznej i nie wolno budować takiego mostu,ot,tak sobie prywatnie. :grin:


Załączniki:
Układ sił.jpg
Układ sił.jpg [ 72.8 KiB | Przeglądane 105824 razy ]
Góra
 Zobacz profil  
 
 Tytuł: Re: Budowa mostu koło Kwidzyna w ciągu DK90
PostNapisane: 29 października 2011, o 01:19 
Offline
Avatar użytkownika

Dołączył(a): 22 października 2010, o 15:27
Posty: 251
Lokalizacja: Obserwator
Płeć: Mężczyzna
Chciałem dalej kombinować(amatorsko),ale,czy to warto? Niedokończony schemat obciążeń i reakcji na zmienne obciążenia,pozostawiam fachowcom.


Załączniki:
53.jpg
53.jpg [ 21.29 KiB | Przeglądane 105673 razy ]
Góra
 Zobacz profil  
 
 Tytuł: Re: Budowa mostu koło Kwidzyna w ciągu DK90
PostNapisane: 29 października 2011, o 12:16 
Posprzątałem na ile potrafiłem a posty i dyskusja jest... sami wiecie gdzie 8)
viewtopic.php?f=123&t=10960&start=0


Góra
  
 
 Tytuł: Re: Budowa mostu koło Kwidzyna w ciągu DK90
PostNapisane: 31 października 2011, o 18:10 
Offline
Przyjaciel forum
Avatar użytkownika

Dołączył(a): 27 października 2006, o 12:24
Posty: 4883
Lokalizacja: Kwidzyn
Płeć: Mężczyzna
Umówiłem się z Brzydalem na filmowanie budowy. Dziś, w świąteczną trzydniówkę, wybraliśmy się nad Wisłę.
Budowa wydawała się uśpiona. Betoniarnia nie pracowała, więc nie było widocznego ruchu. Dopiero po wskrabaniu się
na konstrukcję, zobaczyliśmy zbierającą się do pracy nową zmianę zbrojarzy. A że dzień był przedświąteczny,
to wykonaliśmy sobie kilka fotek. Acha, i wykonałem fotkę największej jaką w życiu widziałem - czerwonej latarce :D

Stan na budowie:
Fundament w lewej podporze zabetonowany
Na podporze środkowej wylano już wszystkie pale i firma Most-Pal usunęła większość sprzętu. Pozostanie teraz
usunąć piasek, koparkę (ciekawe, jak to zrobią) i zabrać się do skuwania końcówek pali.
W prawej podporze wylano pierwsze 800m3 fundamentu. Podsączająca się woda pomaga w wiązaniu betonu.
Na drugim segmencie mostu, zbrojarze cierpliwie wywiązują zbrojenie. Dziś mieli jednominutową sesję foto.
Zobaczymy czy uda się w tym tygodniu zalać belkę drugiego segmentu.


Załączniki:
prawieuśpiona_01.JPG
prawieuśpiona_01.JPG [ 137.59 KiB | Przeglądane 105331 razy ]
prawieuśpiona_02.JPG
prawieuśpiona_02.JPG [ 129.08 KiB | Przeglądane 105331 razy ]
prawieuśpiona_03.JPG
prawieuśpiona_03.JPG [ 187.31 KiB | Przeglądane 105331 razy ]
prawieuśpiona_04.JPG
prawieuśpiona_04.JPG [ 195.26 KiB | Przeglądane 105331 razy ]
prawieuśpiona_05.JPG
prawieuśpiona_05.JPG [ 187.86 KiB | Przeglądane 105331 razy ]
prawieuśpiona_06.JPG
prawieuśpiona_06.JPG [ 236.78 KiB | Przeglądane 105331 razy ]
prawieuśpiona_07.JPG
prawieuśpiona_07.JPG [ 203.9 KiB | Przeglądane 105331 razy ]
prawieuśpiona_08.JPG
prawieuśpiona_08.JPG [ 237.22 KiB | Przeglądane 105331 razy ]
prawieuśpiona_09.JPG
prawieuśpiona_09.JPG [ 226.93 KiB | Przeglądane 105331 razy ]
prawieuśpiona_10.jpg
prawieuśpiona_10.jpg [ 228.27 KiB | Przeglądane 105331 razy ]
prawieuśpiona_11.JPG
prawieuśpiona_11.JPG [ 211.66 KiB | Przeglądane 105331 razy ]
prawieuśpiona_12.JPG
prawieuśpiona_12.JPG [ 243.02 KiB | Przeglądane 105331 razy ]
prawieuśpiona_13.JPG
prawieuśpiona_13.JPG [ 247.79 KiB | Przeglądane 105331 razy ]
prawieuśpiona_14.JPG
prawieuśpiona_14.JPG [ 174.62 KiB | Przeglądane 105331 razy ]
prawieuśpiona_15.JPG
prawieuśpiona_15.JPG [ 169.82 KiB | Przeglądane 105331 razy ]

_________________
"Czym się różni człowiek cywilizowany od kulturalnego? Człowiek cywilizowany jeśli kopnie, to przeprosi, a człowiek kulturalny nie przeprosi, bo nie kopnie"
Góra
 Zobacz profil Wyślij e-mail  
 
 Tytuł: Re: Budowa mostu koło Kwidzyna w ciągu DK90
PostNapisane: 31 października 2011, o 22:55 
Offline
Avatar użytkownika

Dołączył(a): 22 października 2010, o 15:27
Posty: 251
Lokalizacja: Obserwator
Płeć: Mężczyzna
Koniec występów Amatora48,na tym FORUM ADORATORÓW.Czy te ostatnie zdjęcia,to budowa mostu,czy zdjęcia rodzinne?Wiem,wiem...Cholera,kto wie, jak się wylogować?.Będę wdzięczny. :grin:


Góra
 Zobacz profil  
 
 Tytuł: Re: Budowa mostu koło Kwidzyna w ciągu DK90
PostNapisane: 31 października 2011, o 23:29 
Offline

Dołączył(a): 21 maja 2007, o 20:40
Posty: 3718
Lokalizacja: Kwidzyn
Płeć: Mężczyzna
Amator48 napisał(a):
Koniec występów Amatora48,na tym FORUM ADORATORÓW. Cholera,kto wie, jak się wylogować?.Będę wdzięczny. :grin:

Trzymaj się i bywaj zdrów!!Amator48!!! :607:
Miło było! :(

_________________
Z fal ta najgorzej huczy,
co się ma rozbić na piasku.


Góra
 Zobacz profil Wyślij e-mail  
 
 Tytuł: Re: Budowa mostu koło Kwidzyna w ciągu DK90
PostNapisane: 1 listopada 2011, o 09:39 
Offline
Przyjaciel forum

Dołączył(a): 8 marca 2009, o 16:30
Posty: 1548
Lokalizacja: Ziemia
Płeć: Nie wybrano
Amator48 napisał(a):
kto wie, jak się wylogować?.Będę wdzięczny. :grin:


kliknij na "start", później "uruchom" i wpisz to: shutdown -s

:607:


Góra
 Zobacz profil Wyślij e-mail  
 
 Tytuł: Re: Budowa mostu koło Kwidzyna w ciągu DK90
PostNapisane: 1 listopada 2011, o 12:34 
Offline
Avatar użytkownika

Dołączył(a): 26 maja 2009, o 22:23
Posty: 987
Lokalizacja: Kwidzyn
Płeć: Mężczyzna
Amator jak zwykle żartuje, Wiemy, że będzie robił dalej swoją robotę. A co do fotek pracowników, nawet nie wiecie, jak się chłopaki ucieszyli ze zdjęć i jakoś tak obcęgi zaczęły się szybciej obracać :P Obserwując takie tempo to pewnie wyleją ten segment w tym tygodniu. Ale do rzeczy. Miałem okazję, dzięki Oki-emu, pofilmować budowę "od środka". Muszę przyznać, że to co z zewnątrz robi wrażenie, jest niczym w porównaniu budowy widzianej z perspektywy zbrojenia. Mam pełen szacunek do ludzi mozolnie skręcających drutem kolejne, ciężkie i długie elemety zbrojenia. Ta ich cierpliwość, kolejny supełek, trochę w lewo i znów supełek... i tak kilkadziesiąt tysięcy razy. Ale patrząc na zdjęcia tej ekipy, oprócz tego mając w pamięci ich rozmowy z nami, cieszę się, że nie tracą poczucia humoru. Panowie! Oby tak dalej!

_________________
Więcej osiągniesz uśmiechem, niż wyrąbiesz mieczem.
Wybrane reportaże:
Teledysk Laury --- Kwidzyn Timelapse --- Mistrzowie Polski 2015
Obrazek


Góra
 Zobacz profil Wyślij e-mail  
 
 Tytuł: Re: Budowa mostu koło Kwidzyna w ciągu DK90
PostNapisane: 2 listopada 2011, o 07:42 
Offline
Przyjaciel forum

Dołączył(a): 20 czerwca 2007, o 06:05
Posty: 2458
Lokalizacja: Kwidzyn
Płeć: Nie wybrano
Cytuj:
Czy te ostatnie zdjęcia,to budowa mostu,czy zdjęcia rodzinne?Wiem,wiem...Cholera,kto wie, jak się wylogować?.Będę wdzięczny

Owszem są to zdjęcia z budowy i pokazują ludzi, którzy ten most budują. Należy im się szcunek za ciężką pracę i utrwalenie ich wkładu w jedną z ważniejszych inwestycji dla naszego regionu.
A Ciebie Amator będzie nam brakowało, bo Twoje wypowiedzi są bardzo wartościowe dla takich amatorów jak ja.


Góra
 Zobacz profil  
 
 Tytuł: Re: Budowa mostu koło Kwidzyna w ciągu DK90
PostNapisane: 2 listopada 2011, o 11:37 
Offline

Dołączył(a): 10 kwietnia 2006, o 08:44
Posty: 7167
Lokalizacja: Kwidzyn
Płeć: Mężczyzna
Na Wikipedii pojawiła się taka oto panoramka z budowy :-)

Obrazek

Link do pełnego rozmiaru:
http://upload.wikimedia.org/wikipedia/c ... 0-2011.jpg

_________________
Kwidzynopedia - nasza encyklopedia


Góra
 Zobacz profil  
 
 Tytuł: Re: Budowa mostu koło Kwidzyna w ciągu DK90
PostNapisane: 3 listopada 2011, o 17:22 
Offline
Avatar użytkownika

Dołączył(a): 23 kwietnia 2008, o 08:58
Posty: 964
Lokalizacja: Włocławek
Płeć: Mężczyzna
Byłem i ja na budowie drogi dojazdowej do mostu
Ujechałem jakieś dwa kilometry piaszczystą drogą dla wywrotek i koniec ( obok tej budowanej )
Może w 5- cio latce się zmieszczą .


Załączniki:
Komentarz: do Wisły daleko nie widać
droga.JPG
droga.JPG [ 366.43 KiB | Przeglądane 104707 razy ]

_________________
To wszystko nic , na przeciw wieczności .
Góra
 Zobacz profil  
 
 Tytuł: Re: Budowa mostu koło Kwidzyna w ciągu DK90
PostNapisane: 4 listopada 2011, o 15:25 
Offline

Dołączył(a): 20 sierpnia 2011, o 17:05
Posty: 3
Płeć: Nie wybrano
Mam pytanie , czy ktoś wie jaka jest szerokość Wisły w miejscu budowy mostu ?


Góra
 Zobacz profil Wyślij e-mail  
 
Wyświetl posty nie starsze niż:  Sortuj wg  
Utwórz nowy wątek Ten wątek jest zablokowany. Nie możesz w nim pisać ani edytować postów.  [ Posty: 2612 ]  Przejdź na stronę Poprzednia strona  1 ... 54, 55, 56, 57, 58, 59, 60 ... 175  Następna strona

Strefa czasowa: UTC + 1


Kto przegląda forum

Użytkownicy przeglądający ten dział: Brak zidentyfikowanych użytkowników i 1 gość


Nie możesz rozpoczynać nowych wątków
Nie możesz odpowiadać w wątkach
Nie możesz edytować swoich postów
Nie możesz usuwać swoich postów
Nie możesz dodawać załączników

Szukaj:
Skocz do:  


-->

Forum e-kwidzyn jest własnością Stowarzyszenia Promocji Medialnej e-Kwidzyn. Publikowane komentarze są prywatnymi opiniami użytkowników Forum. Właściciel Forum nie ponosi odpowiedzialności za ich treść. Jeżeli którykolwiek z postów na forum łamie dobre obyczaje, zgłoś post do moderacji.