Niezależne forum mieszkańców Kwidzyna i nie tylko :-)

Strefa czasowa: UTC + 1




Utwórz nowy wątek Odpowiedz w wątku  [ Posty: 14 ] 
Autor Wiadomość
 Tytuł: Bloki na Toruńskiej
PostNapisane: 4 lipca 2017, o 08:34 
Offline

Dołączył(a): 2 lutego 2007, o 15:18
Posty: 726
Lokalizacja: Kwidzyn
Płeć: Mężczyzna
Ruszyła budowa bloków na Toruńskiej. Czy są może gdzieś dostępne plany i wizualizacje?


Góra
 Zobacz profil  
 
 Tytuł: Re: Bloki na Toruńskiej
PostNapisane: 4 lipca 2017, o 10:12 
Offline

Dołączył(a): 24 sierpnia 2015, o 08:39
Posty: 215
Płeć: Nie wybrano
W biurze Renawy


Góra
 Zobacz profil Wyślij e-mail  
 
 Tytuł: Re: Bloki na Toruńskiej
PostNapisane: 4 lipca 2017, o 10:41 
Offline

Dołączył(a): 2 lutego 2007, o 15:18
Posty: 726
Lokalizacja: Kwidzyn
Płeć: Mężczyzna
a elektronicznie dla tych co nie w Kwidzynie? Jak budowali Kopernika to były ...


Góra
 Zobacz profil  
 
 Tytuł: Re: Bloki na Toruńskiej
PostNapisane: 4 lipca 2017, o 11:13 
Offline

Dołączył(a): 24 sierpnia 2015, o 08:39
Posty: 215
Płeć: Nie wybrano
wątpię, ale nigdy nie szukałem


Góra
 Zobacz profil Wyślij e-mail  
 
 Tytuł: Re: Bloki na Toruńskiej
PostNapisane: 4 lipca 2017, o 11:22 
Offline

Dołączył(a): 14 grudnia 2009, o 19:12
Posty: 236
Lokalizacja: Kwidzyn
Płeć: Mężczyzna
A orientuje się ktoś co będzie oprócz osiedla renawy na tym placu?


Góra
 Zobacz profil  
 
 Tytuł: Re: Bloki na Toruńskiej
PostNapisane: 4 lipca 2017, o 20:45 
Offline

Dołączył(a): 30 stycznia 2011, o 12:54
Posty: 212
Płeć: Nie wybrano
Rave84 napisał(a):
A orientuje się ktoś co będzie oprócz osiedla renawy na tym placu?


http://www.bip.kwidzyn.pl/upload/201704 ... ekl999.pdf


Góra
 Zobacz profil Wyślij e-mail  
 
 Tytuł: Re: Bloki na Toruńskiej
PostNapisane: 6 lipca 2017, o 08:01 
Offline

Dołączył(a): 14 grudnia 2009, o 19:12
Posty: 236
Lokalizacja: Kwidzyn
Płeć: Mężczyzna
Tak to pisemko widziałem ale czy są jakieś konkrety?słyszałem o supermarkecie ale nie wiem ile w tym prawdy.


Góra
 Zobacz profil  
 
 Tytuł: Re: Bloki na Toruńskiej
PostNapisane: 6 lipca 2017, o 08:19 
Offline
Przyjaciel forum

Dołączył(a): 20 czerwca 2007, o 06:05
Posty: 2458
Lokalizacja: Kwidzyn
Płeć: Nie wybrano
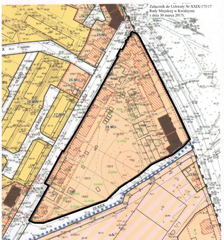
Ale w tej uchwale i załączniku do niej jest mowa o innym fragmencie tej części miasta.
Załącznik:
załącznik.JPG
załącznik.JPG [ 204.28 KiB | Przeglądane 19926 razy ]

Załącznik:
mapa.JPG
mapa.JPG [ 126.27 KiB | Przeglądane 19926 razy ]


Góra
 Zobacz profil  
 
 Tytuł: Re: Bloki na Toruńskiej
PostNapisane: 7 lipca 2017, o 07:13 
Offline

Dołączył(a): 14 grudnia 2009, o 19:12
Posty: 236
Lokalizacja: Kwidzyn
Płeć: Mężczyzna
Chodzi mi konkretnie o miejsc gdzie stał komin i teren w okół.


Góra
 Zobacz profil  
 
 Tytuł: Re: Bloki na Toruńskiej
PostNapisane: 7 lipca 2017, o 07:54 
Offline
Przyjaciel forum

Dołączył(a): 20 czerwca 2007, o 06:05
Posty: 2458
Lokalizacja: Kwidzyn
Płeć: Nie wybrano
Tego nikt nie wie. Generalnie nowe bloki powstają na razie mniej więcej w okolicy głównej bramy od ulicy Toruńskiej. Obok komina wyburzają jeszcze ten ostatni budynek przy płocie od strony Południowej. Kilka dni temu go wysadzali. Teren systematycznie porządkują. Też wyglądam za jakimiś planami, wizualizacjami, bo mieszkam w tym rejonie i jestem żywo zainteresowany tym co tam będzie.


Góra
 Zobacz profil  
 
 Tytuł: Re: Bloki na Toruńskiej
PostNapisane: 7 lipca 2017, o 12:33 
Offline

Dołączył(a): 14 grudnia 2009, o 19:12
Posty: 236
Lokalizacja: Kwidzyn
Płeć: Mężczyzna
reflexes napisał(a):
Tego nikt nie wie. Generalnie nowe bloki powstają na razie mniej więcej w okolicy głównej bramy od ulicy Toruńskiej. Obok komina wyburzają jeszcze ten ostatni budynek przy płocie od strony Południowej. Kilka dni temu go wysadzali. Teren systematycznie porządkują. Też wyglądam za jakimiś planami, wizualizacjami, bo mieszkam w tym rejonie i jestem żywo zainteresowany tym co tam będzie.

Też obserwuje co tam robią nawet muszę bo mieszkam wi za wi placu :)


Góra
 Zobacz profil  
 
 Tytuł: Re: Bloki na Toruńskiej
PostNapisane: 7 lipca 2017, o 16:11 
Offline
Przyjaciel forum
Avatar użytkownika

Dołączył(a): 1 czerwca 2007, o 18:07
Posty: 1361
Lokalizacja: Kwidzyn
Płeć: Mężczyzna
Rave84 napisał(a):
reflexes napisał(a):
Tego nikt nie wie. Generalnie nowe bloki powstają na razie mniej więcej w okolicy głównej bramy od ulicy Toruńskiej. Obok komina wyburzają jeszcze ten ostatni budynek przy płocie od strony Południowej. Kilka dni temu go wysadzali. Teren systematycznie porządkują. Też wyglądam za jakimiś planami, wizualizacjami, bo mieszkam w tym rejonie i jestem żywo zainteresowany tym co tam będzie.

Też obserwuje co tam robią nawet muszę bo mieszkam wi za wi placu :)


To może jakieś foteczki z placu budowy wrzucaj od czasu do czasu na forum :)

_________________
> KTO PYTA NIE BŁĄDZI <


Góra
 Zobacz profil Wyślij e-mail  
 
 Tytuł: Re: Bloki na Toruńskiej
PostNapisane: 8 lipca 2017, o 09:09 
Offline

Dołączył(a): 14 grudnia 2009, o 19:12
Posty: 236
Lokalizacja: Kwidzyn
Płeć: Mężczyzna
Nie ma problemu,będę raz na jakiś czas wrzucał jakieś zdjęcia:-)


Góra
 Zobacz profil  
 
 Tytuł: Re: Bloki na Toruńskiej
PostNapisane: 22 sierpnia 2017, o 18:58 
Offline

Dołączył(a): 14 października 2014, o 16:44
Posty: 210
Płeć: Mężczyzna
Czy ten stary budynek obok będzie tam dalej stał, czy go wyburzą?


Góra
 Zobacz profil Wyślij e-mail  
 
Wyświetl posty nie starsze niż:  Sortuj wg  
Utwórz nowy wątek Odpowiedz w wątku  [ Posty: 14 ] 

Strefa czasowa: UTC + 1


Kto przegląda forum

Użytkownicy przeglądający ten dział: Brak zidentyfikowanych użytkowników i 2 gości


Nie możesz rozpoczynać nowych wątków
Nie możesz odpowiadać w wątkach
Nie możesz edytować swoich postów
Nie możesz usuwać swoich postów
Nie możesz dodawać załączników

Szukaj:
Skocz do:  
cron


-->

Forum e-kwidzyn jest własnością Stowarzyszenia Promocji Medialnej e-Kwidzyn. Publikowane komentarze są prywatnymi opiniami użytkowników Forum. Właściciel Forum nie ponosi odpowiedzialności za ich treść. Jeżeli którykolwiek z postów na forum łamie dobre obyczaje, zgłoś post do moderacji.